Rumah Minimalis Type 60 3 Kamar : 30 Denah Rumah Type 60 Desain Minimalis Terbaru 2020

Rumah Minimalis Type 60 3 Kamar : 30 Denah Rumah Type 60 Desain Minimalis Terbaru 2020. Nah, agar cantik, cek referensi ⭐ 22+ denah & desain rumah type 60 ini dan temukan ide terbaik untuk rumah idaman anda. 53+ bentuk & model rumah minimalis sederhana modern di kampung (desa) denah rumah minimalis type 36 (1 dan 2 lantai) rumah minimalis dengan kamar tidur yang banyak tidak selalu harus berlantai 2. Denah kita yang pertama memiliki luas total bangunan 60 meter persegi dengan pembagian luasan 30 m2 untuk lantai satu dan 30 m2 untuk luasan lantai 2.model denah kita yang pertama ini bisa di katakan sangat kaku dan formal. Rumah disewakan di sepinggan, balikpapan, kalimantan timur seharga rp 3000000 dengan 2 kamar tidur dan 1 kamar mandi.bisa nego ️ kpr ️strategis ️agen resmi & terpercaya ️. Denah rumah type 60 2 lantai d

Tambahkan tanaman hijau serta bebatuan alam untuk mendapatkan kesan natural. Kumpulan desain rumah minimalis dari type 36, 40, 60 sampai 90 yang trend tahun ini, menonjolkan fungsi taman, taman bisa menjadi salah satu cara untuk mengatasi banjir atau genangan air saat hujan deras. Setelah anda melihat desain rumah minimalis type 45 3 kamar tidur, berikut juga saya sajikan denah rumah type 45 3 kamar tidur. Dapatkan pencahayaan alami dari sinar matahari dengan banyak bukaan atau jendela di bagian depan. Denah rumah minimalis type, desain interior rumah type , desain rumah minimalis type 60 , jasa arsitek rumah , jasa bangun rumah , jasa desain interior , jasa desain rumah minimalis, jasa desain rumah murah jasa desain rumah online , jasa renovasi rumah , rumah type 60 2 lantai, rumah type 60 3 kamar

Desain Rumah Tipe 60 Hunian Nyaman Dan Ideal Untuk Keluarga Interiordesign Id
Desain Rumah Tipe 60 Hunian Nyaman Dan Ideal Untuk Keluarga Interiordesign Id from interiordesign.id
Jika anda ingin memaksimalkan ruangan yang ada di dalam rumah type 30/60, tentu saja anda bisa melakukannya dengan membatasi jumlah ruangan seperlunya saja, misalnya 1 kamar tidur. Meski tidak ada taman, rumah ini sudah memiliki 2 teras kecil. Rumah minimalis type 60 map 7 rp 3.000.000 per bulan. Setelah anda melihat desain rumah minimalis type 45 3 kamar tidur, berikut juga saya sajikan denah rumah type 45 3 kamar tidur. Exporumahminimalis.blogspot.com alasan memilih desain rumah type 60 dengan 3 kamar tidur. Keleluasaan ruangan akan memungkinkan anda untuk memiliki 3 buah kamar tidur dengan ukuran yang lumayan besar, 3 kamar mandi, 1 dapur, dan teras samping rumah. Bisa dilihat, di lantai 1 terdapat 3 kamar tidur dan di lantai atas terdapat 3 kamar tidur pula. Dengan adanya taman system peresapan air akan lebih cepat, untuk itu sebaiknya taman dibuat lebih lebar sedikit di teras depan maupun belakang.

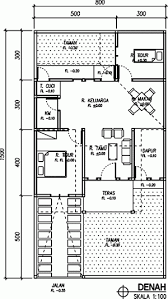
Denah berisi luas rumah, ukuran luas tiap ruangan, dan juga struktur bangunan rumah.

Tambahkan tanaman hijau serta bebatuan alam untuk mendapatkan kesan natural. Desain rumah type 45 dan denah terbaru 2018. Anda dapat menjumpai banyak type rumah 60 dengan 2 sampai 3 kamar tidur, karenanya dapat memenuhi kebutuhan hunian keluarga dengan 1 atau 2 anak. Vannia rie 28 mei 2021. Desain rumah type 60 dengan 3 kamar tidur seperti apa yang sudah saya singgung sebelumnya, bahwasanya rumah dengan ukuran 60 meter persegi ini bisa memiliki tiga kamar di dalamnya. Gambar denah rumah minimalis kita kali ini adalah denah dengan ukuran lahan lebar 6 meter dengan panjang 13 meter dengan 3 buah kamar tidur dan pada 2 lantai bangunan. Denah rumah minimalis type 60/90. Dengan adanya taman system peresapan air akan lebih cepat, untuk itu sebaiknya taman dibuat lebih lebar sedikit di teras depan maupun belakang. Denah rumah minimalis 2 lantai type 36 versi c ini menampilkan 3 kamar tidur, 2 kamar mandi, dapur, ruang keluarga, ruang tamu, teras, balkon, garasi, halaman depan, dan halaman belakang. Rumah disewakan di sepinggan, balikpapan, kalimantan timur seharga rp 3000000 dengan 2 kamar tidur dan 1 kamar mandi.bisa nego ️ kpr ️strategis ️agen resmi & terpercaya ️. Bisa dilihat, di lantai 1 terdapat 3 kamar tidur dan di lantai atas terdapat 3 kamar tidur pula. Denah rumah minimalis type, desain interior rumah type , desain rumah minimalis type 60 , jasa arsitek rumah , jasa bangun rumah , jasa desain interior , jasa desain rumah minimalis, jasa desain rumah murah jasa desain rumah online , jasa renovasi rumah , rumah type 60 2 lantai, rumah type 60 3 kamar Jika anda ingin memaksimalkan ruangan yang ada di dalam rumah type 30/60, tentu saja anda bisa melakukannya dengan membatasi jumlah ruangan seperlunya saja, misalnya 1 kamar tidur.

⭐ 1 lantai ⭐ 2 lantai ⭐ apartemen ⭐ kecil → luas. Denah rumah memberi gambaran 2 dimensional bentuk bentuk pola ruang di dalam bangunan serta memberi gambaran alur sirkulasi di dalam bangunan. Meski tidak ada taman, rumah ini sudah memiliki 2 teras kecil. Keleluasaan ruangan akan memungkinkan anda untuk memiliki 3 buah kamar tidur dengan ukuran yang lumayan besar, 3 kamar mandi, 1 dapur, dan teras samping rumah. Meskipun hanya terdiri dari satu lantai, tapi denah rumah type 60 dengan tiga kamar tidur ini sangat nyaman untuk dihuni, bahkan terdapat fungsi dan fasilitas yang lengkap dari dapur, kamar mandi, carport minimalis , taman minimalis , ruang keluarga, dan ruang tamu.

Contoh Denah Rumah Type 60 3 Kamar Tidur Popertihom
Contoh Denah Rumah Type 60 3 Kamar Tidur Popertihom from rumahpedia.info
3 fungsi denah rumah minimalis tipe 60 yang sesuai. ⭐ 1 lantai ⭐ 2 lantai ⭐ apartemen ⭐ kecil → luas. Denah rumah memberi gambaran 2 dimensional bentuk bentuk pola ruang di dalam bangunan serta memberi gambaran alur sirkulasi di dalam bangunan. Buat kamu yang merencanakan atau sudah memiliki 2 anak, denah ini cocok untuk kamu. Berlaku untuk rumah satu lantai maupun dua lantai. Denah rumah ini memiliki dua taman (depan dan belakang) yang bisa membuat rumah anda terasa dan terlihat jauh lebih. Anda dapat menjumpai banyak type rumah 60 dengan 2 sampai 3 kamar tidur, karenanya dapat memenuhi kebutuhan hunian keluarga dengan 1 atau 2 anak. Jika anda ingin menyimpan foto atau gambar gambar denah rumah minimalis type 36 60 ini ke perangkat anda, maka sebagai informasi, besar filenya adalah 140 kb dengan tags denah rumah type 36, denah rumah type 36 2 lantai, denah rumah type 36 3 kamar tidur, denah rumah type 36/72, dan gambar denah rumah minimalis type 36 60.

Tambahkan tanaman hijau serta bebatuan alam untuk mendapatkan kesan natural.

Terdiri dari 2 kamar tidur, 2 kamar mandi, dapur, serta ruang makan dan ruang keluarga tanpa sekat. Anda dapat menjumpai banyak type rumah 60 dengan 2 sampai 3 kamar tidur, karenanya dapat memenuhi kebutuhan hunian keluarga dengan 1 atau 2 anak. Gambar denah rumah minimalis kita kali ini adalah denah dengan ukuran lahan lebar 6 meter dengan panjang 13 meter dengan 3 buah kamar tidur dan pada 2 lantai bangunan. Oleh karena itu, pastikan anda merancang denah rumah dengan baik. Denah rumah satu ini terbilang cukup minimalis, terdiri dari 2 kamar tidur, 1 ruang makan, 1 ruang ruang keluarga, 1 dapur dan 1 kamar mandi. Meskipun hanya terdiri dari satu lantai, tapi denah rumah type 60 dengan tiga kamar tidur ini sangat nyaman untuk dihuni, bahkan terdapat fungsi dan fasilitas yang lengkap dari dapur, kamar mandi, carport minimalis , taman minimalis , ruang keluarga, dan ruang tamu. Jika anda memiliki pemikiran dalam membuat kreativitas yang berkaitan dengan desain rumah minimalis type 70 3 kamar tidur. Ketiga, denag rumah tipe 60 yang satu ini juga cocok untuk anda yang membutuhkan kamar dalam jumlah banyak. Keleluasaan ruangan akan memungkinkan anda untuk memiliki 3 buah kamar tidur dengan ukuran yang lumayan besar, 3 kamar mandi, 1 dapur, dan teras samping rumah. Denah kita yang pertama memiliki luas total bangunan 60 meter persegi dengan pembagian luasan 30 m2 untuk lantai satu dan 30 m2 untuk luasan lantai 2.model denah kita yang pertama ini bisa di katakan sangat kaku dan formal. Untuk desain fasad rumah tipe 60, anda dapat menggunakan gaya modern minimalis yang simpel namun elegan. Denah rumah type 45 minimalis. Kumpulan desain rumah minimalis dari type 36, 40, 60 sampai 90 yang trend tahun ini, menonjolkan fungsi taman, taman bisa menjadi salah satu cara untuk mengatasi banjir atau genangan air saat hujan deras.

Cocok juga untuk keluarga kecil dengan 1 anak, sementara kamar lainnya untuk kamar tamu. Rumah minimalis 3 kamar adalah rumah yang ideal untuk keluarga menengah dengan jumlah anak 2 hingga 3 orang. Jika anda memiliki pemikiran dalam membuat kreativitas yang berkaitan dengan desain rumah minimalis type 70 3 kamar tidur. Denah rumah minimalis type 60/90. Denah rumah satu ini terbilang cukup minimalis, terdiri dari 2 kamar tidur, 1 ruang makan, 1 ruang ruang keluarga, 1 dapur dan 1 kamar mandi.

Gunakan 5 Denah Rumah Type 60 Ini Dijamin Makin Betah
Gunakan 5 Denah Rumah Type 60 Ini Dijamin Makin Betah from i0.wp.com
⭐ 1 lantai ⭐ 2 lantai ⭐ apartemen ⭐ kecil → luas. Oleh karena itu, pastikan anda merancang denah rumah dengan baik. Exporumahminimalis.blogspot.com alasan memilih desain rumah type 60 dengan 3 kamar tidur. Vannia rie 28 mei 2021. Ingat, denah rumah sangat penting untuk menunjang pembuatan konsep rumah. Desain rumah minimalis type 70 3 kamar tidur, inspirasi spesial! Denah rumah minimalis 2 lantai type 36 3 kamar tidur. Setelah anda melihat desain rumah minimalis type 45 3 kamar tidur, berikut juga saya sajikan denah rumah type 45 3 kamar tidur.

Ingat, denah rumah sangat penting untuk menunjang pembuatan konsep rumah.

Perlu anda ketahui juga bahwa bentuk rumah minimalis dengan 3 kamar tidur minimal menggunakan desain rumah type 36/72 atau rumah type 45/72, itu pun jika anda mau ekonomis dalam membangun rumah sendiri dan tidak mempunyai dana yang memadai untuk membangun rumah di atas type 36/72 atau 45/72. Kali ini admin homeshabby.com mencoba membantu memberi pilihan desain dan denah rumah type 60 dengan 3 kamar tidur yang cocok untuk cluster. Denah rumah type 60 ini mengusung konsep rumah minimalis. Desain rumah minimalis 3 kamar 1 mushola, sumber gambar : Nah, agar cantik, cek referensi ⭐ 22+ denah & desain rumah type 60 ini dan temukan ide terbaik untuk rumah idaman anda. Jika kamu punya tanah seluas 90 m2, denah rumah ini bisa jadi solusi. Rumah disewakan di sepinggan, balikpapan, kalimantan timur seharga rp 3000000 dengan 2 kamar tidur dan 1 kamar mandi.bisa nego ️ kpr ️strategis ️agen resmi & terpercaya ️. Temukan ragam ide desain & denah rumah minimalis 3 kamar yang inspiratif disini: Pada kumpulan rumah type 60 berikut ini terdapat ragam inspirasi mulai dari 1 kamar, 2 kamar, 3 kamar, untuk apartemen, dengan taman, dan sebagainya. Denah rumah memberi gambaran 2 dimensional bentuk bentuk pola ruang di dalam bangunan serta memberi gambaran alur sirkulasi di dalam bangunan. 53+ bentuk & model rumah minimalis sederhana modern di kampung (desa) denah rumah minimalis type 36 (1 dan 2 lantai) rumah minimalis dengan kamar tidur yang banyak tidak selalu harus berlantai 2. Tambahkan tanaman hijau serta bebatuan alam untuk mendapatkan kesan natural. Buat kamu yang merencanakan atau sudah memiliki 2 anak, denah ini cocok untuk kamu.